Direccion

Anatole France 1869

Telefono

(011) 4249-9459

Whatsapp

1161309006

Volver

Volver al listado

Departamento en Venta en Banfield Este

direccion Vergara 1500, Banfield

Venta

USD 137.000

Características
tipo Departamentos
ambiente 3 ambientes
dormitorio 2 dormitorios
baños 2 baños
cochera 1 cochera
superficie Sup. cubierta 65m2
superficie Sup. total 67m2
codigo Código 230-2648-t46285761-46285761
Acerca de la propiedad

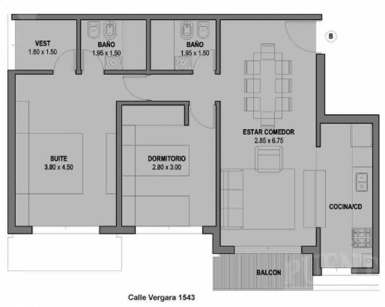
VENTA DEPARTAMENTO 3 AMBIENTES PISO 20°. BANFIELD LOMAS DE ZAMORA 

Consta de living-comedor con balcón y vista al frente, aire acondicionado frio/calor, pisos de porcelanato y cocina integrada mediante barra desayunador (muebles bajo y sobre mesada) . Pasillo distribuidor que conduce al baño completo y los dos dormitorios. El Dormitorio principal con pisos de porcelanato, vestidor y baño en suite. Dormitorio secundario con pisos de porcelanato y frentes de placard.

CON COCHERA CUBIERTA


Las medidas y superficies son aproximadas.

Los datos oficiales saldrán de los respectivos títulos de cada inmueble y/o planos.




SAN MIGUEL PROPIEDADES

Dirección: Anatole France 1869 - Lanús Este

Teléfonos: 4249-9459 / Whatsapp: 11-6130-9006

Horario de Atención Lunes a Viernes de 10 hs a 18 hs.

Emprendimientos - Tasaciones reales - Administración de alquileres -

Ubicación
Consultar por propiedad
Departamento En Venta En Banfield Este
Venta
USD 137.000

Comunicate con nosotros

error

error

error

error


Propiedades relacionadas
Chatea con nosotros situacion
contacto No dudes en contactarte con nosotros contacto
Whatsapp WHATSAPP telefono LLAMAR
Comunicate con nosotros

error

error

error

error