Direccion

Anatole France 1869

Telefono

(011) 4249-9459

Whatsapp

1161309006

Volver

Volver al listado

Departamento en Lanús Este

direccion Salta Al 1500, Lanús Este

Venta
Rebajada

USD 68.000 Rebaja 4 %

Características
tipo Departamentos
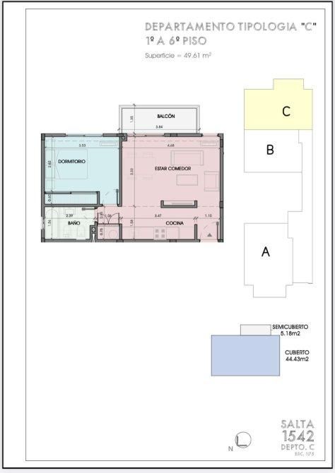
ambiente 2 ambientes
dormitorio 1 dormitorio
baños 1 baño
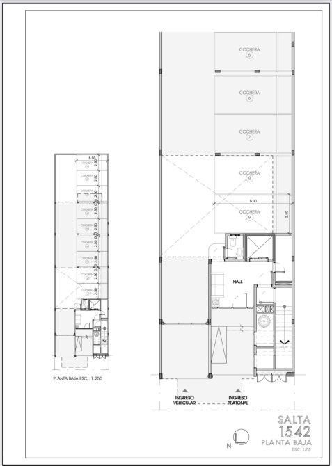
parrilla Con parrilla
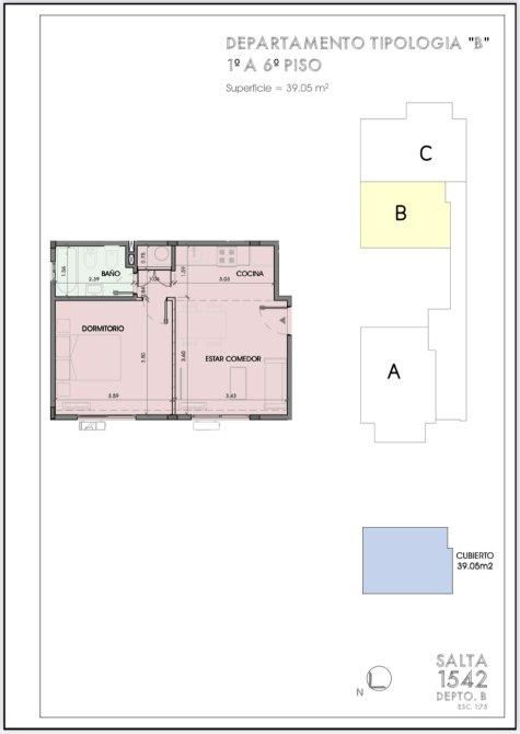
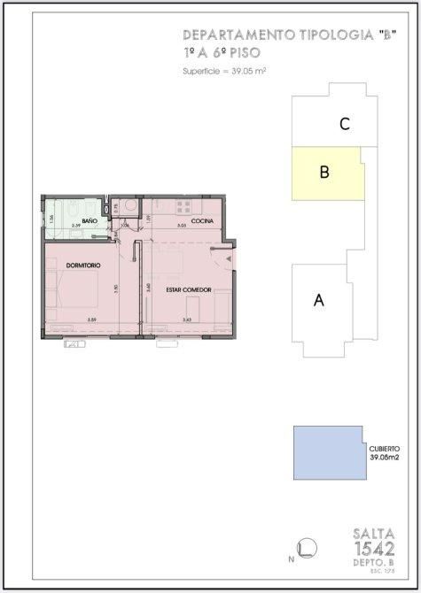
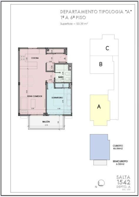
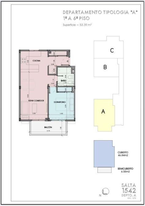
superficie Sup. cubierta 46m2
superficie Sup. total 53m2
codigo Código SBU58328 AP6346737
Acerca de la propiedad

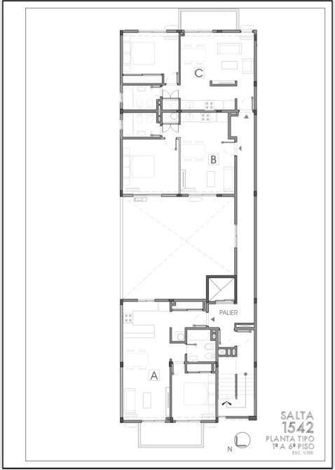
VENTA DEPARTAMENTO 2 AMBIENTES LANUS ESTE
Departamento en construcción, que consta de living comedor con balcón, cocina integrada, dormitorio y baño.

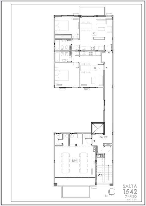
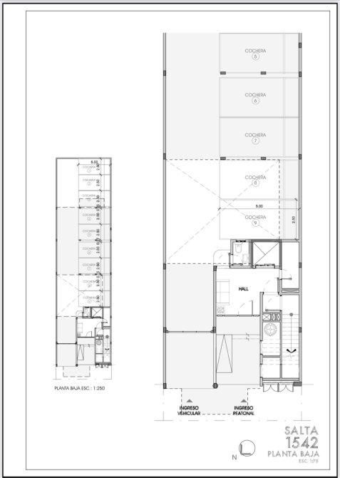
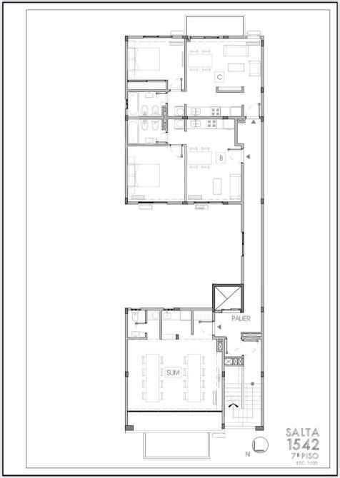
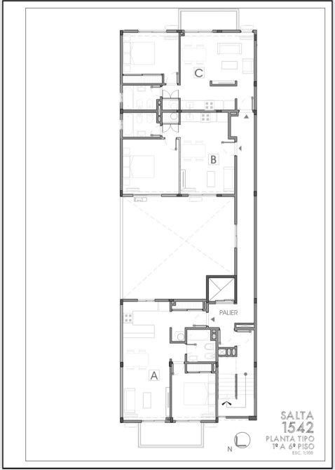
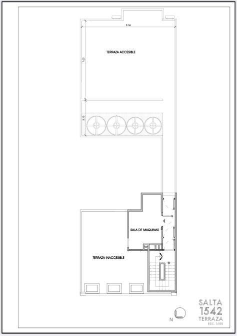
El edificio cuenta con: Hall doble altura vidriado con piso de porcelanato, ascensor monta-auto para cocheras, SUM con gimnasio y solarium, terraza accesibles de usos múltiples y detalles de categoría en fachada.

Las medidas y superficies son aproximadas.

Los datos oficiales saldrán de los respectivos títulos de cada inmueble y/o planos.

SAN MIGUEL PROPIEDADES

Dirección: Anatole France 1869 - Lanús Este

Teléfonos: 4249-9459 / Whatsapp: 11-6130-9006

Horario de Atención Lunes a Viernes de 10 hs a 18 hs.

Emprendimientos - Tasaciones reales - Administración de alquileres -

Ubicación
Consultar por propiedad
Departamento En Lanús Este
Venta
USD 68.000

Comunicate con nosotros

error

error

error

error


Propiedades relacionadas
Chatea con nosotros situacion
contacto No dudes en contactarte con nosotros contacto
Whatsapp WHATSAPP telefono LLAMAR
Comunicate con nosotros

error

error

error

error