USD 88.000
VENTA DEPARTAMENTO 2 AMBIENTES LANUS ESTE
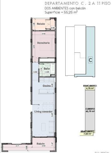
Departamento en construcción, que consta de living comedor con balcón al frente, cocina integrada, dormitorio al contra frente con balcón y baño.
El edificio cuenta con: Hall doble altura vidriado con piso de porcelanato, ascensor monta-auto para cocheras, SUM y solarium, terraza accesibles de usos múltiples y detalles de categoría en fachada.
COCHERAS DISPONIBLES
PRECIO U$D 88.000
Las medidas y superficies son aproximadas.
Los datos oficiales saldrán de los respectivos títulos de cada inmueble y/o planos.
SAN MIGUEL PROPIEDADES
Dirección: Anatole France 1869 - Lanús Este
Teléfonos: 4249-9459 / Whatsapp: 11-6130-9006
Horario de Atención Lunes a Viernes de 10 hs a 18 hs.
Emprendimientos - Tasaciones reales - Administración de alquileres -